Cargando...

Blue Mountains UNITEC Campus Cuitlahuac

Blue Mountains UNITEC Campus Cuitlahuac

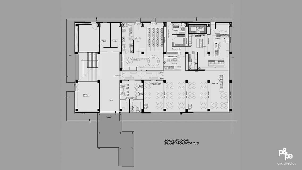
La transformación de áreas administrativas en un espacio que cubriera las necesidades espaciales para albergar la Escuela de Gastronomía y Turismo requerida por la Universidad Tecnológico de México.

Trabajo arduo y riguroso que culminó con una propuesta basada en un espacio continuo y abierto y con un diseño contemporáneo, logrado con el uso de materiales transparentes y el manejo de colores para generar diversos ambientes en un mismo espacio.