Cargando...

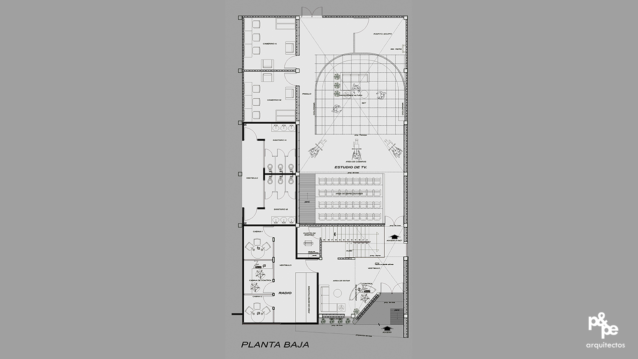
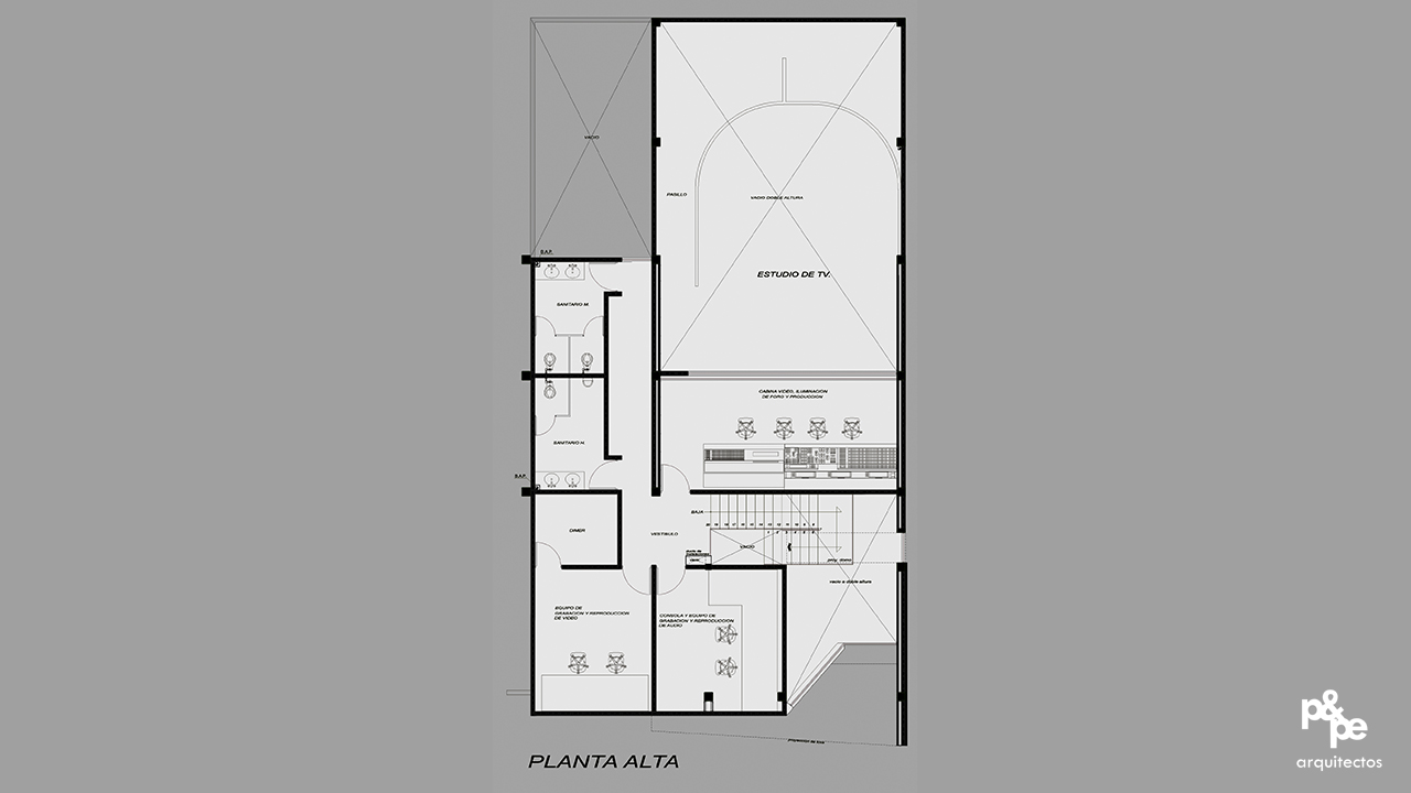
Foro TV UVM Campus Villahermosa

Foro TV UVM Campus Villahermosa

Respondiendo a la necesidad de un espacio para alojar el Foro de tv y escenarios académicos del área de comunicación de la Universidad del Valle de México campus Villahermosa Tabasco.

Se generó el proyecto arquitectónico basado en el concepto de tener una volumetría sencilla pero vistosa con áreas privadas para el desarrollo de las actividades, con pocas transparencias y un lugar hermético para optimizar el sistema de aire acondicionado por las condiciones naturales del lugar.